Продаю квартиру формата евро-три.
Монолитно-кирпичный дом 2018 года постройки. Чистый подъезд. В доме есть подземный паркинг. Достаточно мест для парковки во дворе. Вся инфраструктура в шаговой доступности.
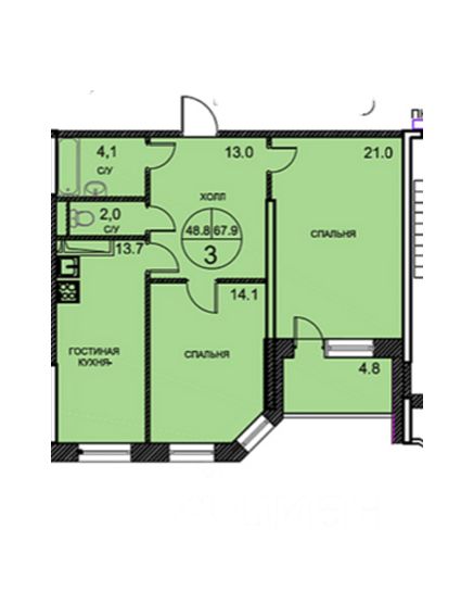
Удачная планировка. Просторный холл-прихожая. Кухня-гостиная 14 кв.м. Застекленная лоджия, выход на лоджию из спальни.
Один взрослый собственник.
Абсолютно свободная продажа.










