Именно этот Дом за эту Цену!
Лесная нарезка в КП Удино парк!
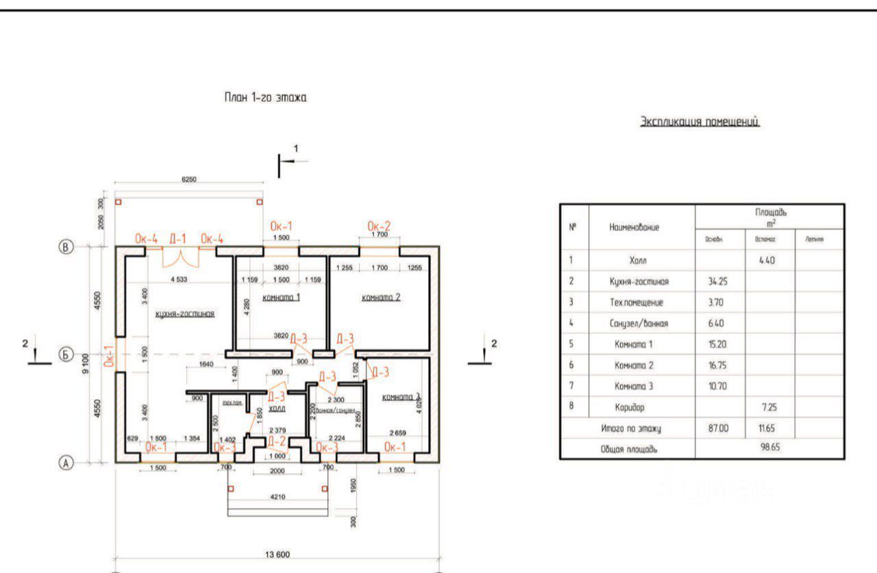
Уважаемые покупатели и коллеги, данный проект реализовывается в рамках приобретения участка земли и подряда на строительство дома который указан на фотографиях , срок строительства составляет 2.5 месяца .
Приобретение данного проекта возможно через Эскроу счета.
В следующем году к поселку будет подведен газ в рамках Программы Правительства Московской области Развитие газификации в Московской области до 2030 года
Ипотека приветствуется!
Подходит под семейную ипотеку!
Помощь в одобрении ипотеки!
Застройщик аккредитован в рамках федерального закона 186-ФЗ о строительстве жилых домов по договорам строительного подряда с использованием счетов Эскроу.











