Если цена в объявлении изменится, мы сразу сообщим вам об этом на электронную почту.
Нажимая «Подписаться», вы соглашаетесь с правилами.
продам 3-к, Оборонная, 3212 100 000 ₽
30 сен
Дата публикации объявления
Обн. 30 сен
Дата обновления объявления
9
Количество просмотров (+ просмотры за сегодня)
162 853 ₽/м²
Чистая продажа
Термин "Чистая продажа" означает, что в квартире никто не прописан или
есть куда выписаться и вывезти вещи. Это лучший вариант для покупателя.
Вероятность срыва сделки минимальна.
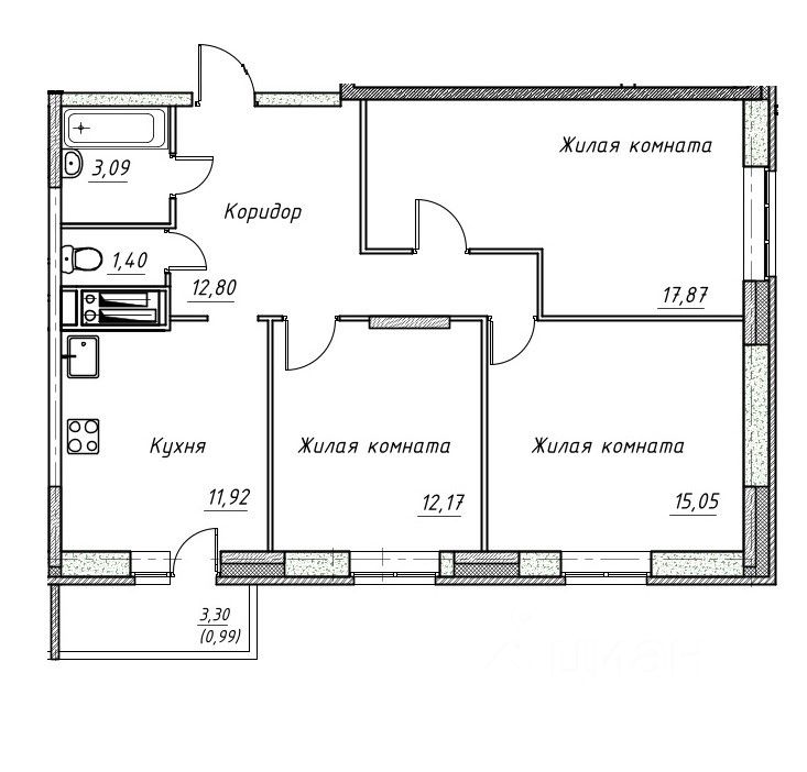
продается 3-к квартира общей площадью 77,6 кв.м (74,30 без учета балкона)., находящееся в новом доме комфорт-класса по адресу: Московская область, г. Дмитров, Оборонная улица, 32
Квартира: В квартире расположены 3 изолированные комнаты, площадью: 12.17 кв.м., 15.05 кв.м. и 17, 87 кв.м, просторная кухня, имеющая площадь 12 кв.м. имеет выход на застекленную лоджию (3.3 кв.м.). Санузел раздельный. В квартире сделан качественный евроремонт, выполненный в теплых тонах.
Дом: Монолитно-кирпичный 2021 года постройки.
продается 3-к квартира общей площадью 77,6 кв.м (74,30 без учета балкона)., находящееся в новом доме комфорт-класса по адресу: Московская область, г. Дмитров, Оборонная улица, 32
Квартира: В квартире расположены 3 изолированные комнаты, площадью: 12.17 кв.м., 15.05 кв.м. и 17, 87 кв.м, просторная кухня, имеющая площадь 12 кв.м. имеет выход на застекленную лоджию (3.3 кв.м.). Санузел раздельный. В квартире сделан качественный евроремонт, выполненный в теплых тонах.
Дом: Монолитно-кирпичный 2021 года постройки. Входная группа подчеркивает статус дома, ее изысканный интерьер и премиальные материалы не оставят вас равнодушными, в доме присутствует своя собственная котельная, по этому отопление может регулироваться в зависимости от погодных условий, помимо этого в доме также находится собственная система фильтрации воды, которая обеспечивает защиту как для здоровья, так и для бытовых приборов. На первом этаже дома размещены коммерческие помещения. Один взрослый собственник. Никто не прописан.