3-к, Пятиречье, 1 Показать на карте
Целеево
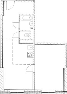
Продаётся 3-комнатная квартира в сданном доме (Пятиречье, 1), срок сдачи: IV-кв. 2023, общей площадью 79.6 кв.м., на 2 этаже. Расположение, транспортная доступность Жилой комплекс эконом-класса ''Пятиречье'' строится компанией ''Пятиречье'' на участке в 19 га между н/п Деденево и Целеево (40 км от МКАД) по индивидуальному архитектурному проекту. Комплекс будет состоять из 13 12-17 этажных корпусов и общественных зданий. К последним относятся детский сад, школа, торгово-развлекательный и деловой центры. Строительство ЖК ''Пятиречье'' разбито на семь очередей, в первую из которых войдет трехсекционный корпус 4 на 228 квартир с подземным паркингом на 122 автомобиля. Далее будут строиться еще три жилых здания и детсад. Последняя очередь строительства - многофункциональный центр. В пяти минутах пешком от комплекса находится станция пригородных поездов Турист. Кроме того, от Савеловского вокзала сюда прибывают электрички на Дмитров, Талдом, Савелово. Время в пути - около 1 часа 10 минут. Также от станции метрополитена ''Алтуфьево'' курсируют автобусы на Дмитров (примерно 20 рейсов в день). Ближайшие автомагистрали - Дмитровское шоссе (А104), а также ''Целеево-Парамоново-Дъяково''. К ЖК ''Пятиречье'' есть два подъезда, которые не пересекают железную дорогу. До города Дмитров от комплекса 12 км. До Дмитрова можно доехать на электричке (15 минут в пути) либо на машине по Дмитровскому шоссе (через Деденево до этой трассы 1,5 км). Предусмотренная планом Центральная кольцевая дорога пройдет примерно в 4,5 км отсюда. До Шереметьево от железнодорожной станции Лобня ходят маршрутки и автобусы. Инфраструктура В микрорайоне ''Пятиречье'' построят следующие социальные и торговые объекты: детский сад на 280 малышей с бассейном, спортивным залом, площадками для игр и активного времяпрепровождения. Кроме того, здесь появятся: общеобразовательная школа на 880 мест (будет сдана в четвертой очереди), торгово-развлекательный комплекс (магазины, офисы, кинотеатр, фитнес-центр, парковка), паркинги (наземные и подземные) - примерно 2850 машиномест, различные объекты на цокольных и первых уровнях корпусов, во встроенно-пристроенных помещениях - магазины, салоны красоты, парикмахерские, прачечные, химчистки, почтовое отделение. Территория ЖК ''Пятиречье'' будет озеленена (5,5 га) и освещена, здесь предусмотрены фонтаны, асфальтирование проездов, мощение дорожек и площадок, детские и спортплощадки, искусственное озеро с оборудованной набережной и пляжем. В трех километрах от новостройки находится Центр подготовки сборных команд страны по зимним видам спорта (одну из частей ЖК ''Пятиречье'' отведут для проживания спортсменов и персонала центра). Кроме центра подготовки, поблизости от микрорайона расположены: спортивно-развлекательный парк, горнолыжный парк, горнолыжный клуб, спортивный курорт, гольф- и поло-клуб, международный санно-бобслейный комплекс, парк ''Экстрим'', река Икша с притоками, канал им. Москвы, Яхромское водохранилище, Деденевское лесничество. Район богат на ис
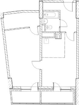
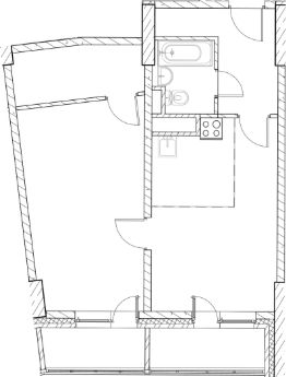
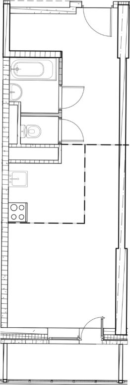
79 м2
2 / 16 этаж
Кирпич - монолит
- Показать контакты
- Добавить в избранное
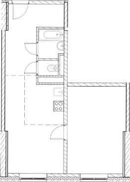
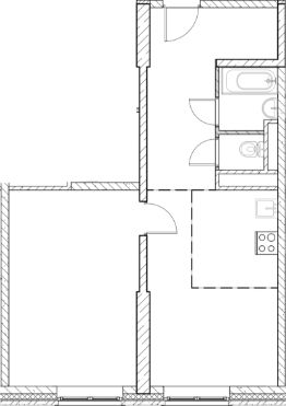
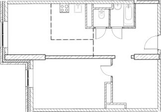
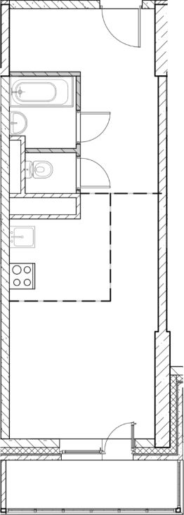
79 м2
2 / 16 этаж
Кирпич - монолит
7 258 246
91 184 /м2
